間取りとCGでIプロジェクト全体像が見えてきたかと思います。次はリノベーションカーサスタッフ作成のイラストにて、Iプロジェクトの楽しい使い方をご提案いたします。
大きなダイニングテーブルとアイランドキッチンを囲んで、みんなで料理とお食事を楽しみます。子供たちもお手伝い。キッチンからは美味しそうな匂いが広がり、ダイニングテーブルではわいわい会話が弾みます。その側で寝室とリビングを駆け回って遊ぶ子供たち。大人も子供も楽しい時間が広がりそうです。
バルコニーは海からのダイレクトなアクセスが可能ですので、海で遊んだあとはバルコニーで一休み。広さがありますので子供プールを広げて水遊びをしたり、スイカ割りだってできるんです。バーベキューも夏の楽しみの一つ。外で焼いたものを中に持って行って食べたり、バルコニーでお酒を飲みながらくつろいだり。リビングからの連続性があり、外と内の楽しい使い方ができます。
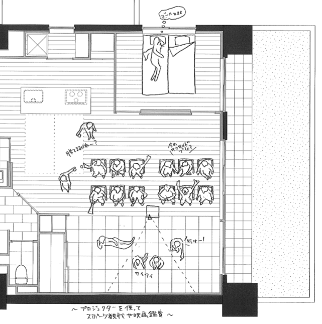
遊び疲れたらフリースペースでゴロゴロと御昼寝。
プロジェクターを使ってみんなでサッカー観戦。スポーツ観戦は一人で家でじっとしながら観るよりも大勢でワイワイ盛り上がる方が楽しいですよね。大きな画面でみんなで応援しているとまるでスタジアムで観戦しているかのような臨場感を楽しめます。
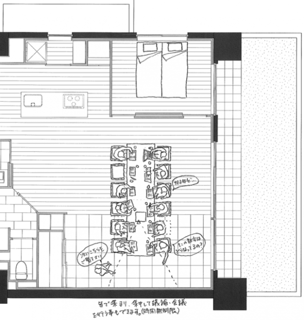
ダイニングテーブルを動かして向きを変えればミーティングもできます。いつもとは違った空間で、いい案がたくさん生まれそうです。
洗面脱衣室とは別にメイクルームを設けていますので、誰かがお風呂に入っていても安心して洗面台を使うことができます。お風呂はLDKからも離れているので、ワイワイした音も気になりません。パブリックスペースとプライベートスペースを使い分けることで皆がより快適に過ごすことができます。
「人が集まり快適に過ごせる空間」。人数に合わせて、季節に合わせて、目的に合わせて、フレキシブルに様々な楽しい使い方が広がりそうです。
間取りとCGでIプロジェクト全体像が見えてきたかと思います。次はリノベーションカーサスタッフ作成のイラストにて、Iプロジェクトの楽しい使い方をご提案いたします。
ダイニング・キッチン
大きなダイニングテーブルとアイランドキッチンを囲んで、みんなで料理とお食事を楽しみます。子供たちもお手伝い。キッチンからは美味しそうな匂いが広がり、ダイニングテーブルではわいわい会話が弾みます。その側で寝室とリビングを駆け回って遊ぶ子供たち。大人も子供も楽しい時間が広がりそうです。
バルコニー
バルコニーは海からのダイレクトなアクセスが可能ですので、海で遊んだあとはバルコニーで一休み。広さがありますので子供プールを広げて水遊びをしたり、スイカ割りだってできるんです。バーベキューも夏の楽しみの一つ。外で焼いたものを中に持って行って食べたり、バルコニーでお酒を飲みながらくつろいだり。リビングからの連続性があり、外と内の楽しい使い方ができます。
フリースペース1
遊び疲れたらフリースペースでゴロゴロと御昼寝。
フリースペース2
プロジェクターを使ってみんなでサッカー観戦。スポーツ観戦は一人で家でじっとしながら観るよりも大勢でワイワイ盛り上がる方が楽しいですよね。大きな画面でみんなで応援しているとまるでスタジアムで観戦しているかのような臨場感を楽しめます。
フリースペース3
ダイニングテーブルを動かして向きを変えればミーティングもできます。いつもとは違った空間で、いい案がたくさん生まれそうです。
洗面室
洗面脱衣室とは別にメイクルームを設けていますので、誰かがお風呂に入っていても安心して洗面台を使うことができます。お風呂はLDKからも離れているので、ワイワイした音も気になりません。パブリックスペースとプライベートスペースを使い分けることで皆がより快適に過ごすことができます。
「人が集まり快適に過ごせる空間」。人数に合わせて、季節に合わせて、目的に合わせて、フレキシブルに様々な楽しい使い方が広がりそうです。