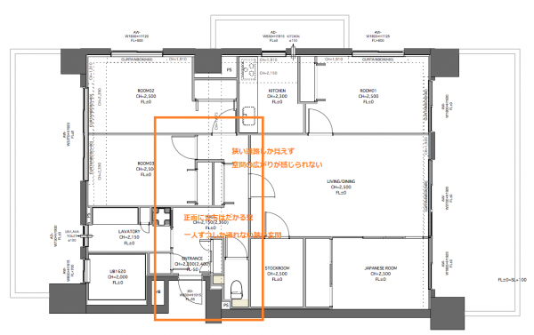
約100㎡もあるこの物件。全体的には広いはずなのに、玄関を開けたら狭い廊下とその正面には壁が立ちはだかり、全くその広さを感じることができなかったのがウィークポイントでした。
空間全体の広がりを感じられるような玄関にしたい。どうやったら狭くない玄関になるのか?
床から天井まであった両開きの玄関収納を取り払い、腰高の収納を設けました。そうすることにより玄関扉を開けた際に視覚的に目線が広がり、空間が広く感じるようになります。腰高の玄関収納は小物やオブジェを飾ることもでき、お客様のお出迎えがきちんとできるスペースにもなります。
?
玄関入って正面に見える壁を塗り壁調にして、アイキャッチのポイントとします。だだの壁ではなくこうしたアクセントを持たせることで、玄関を入った時の驚きや感動、この先にどんな空間が広がるのかなというワクワク感も生まれます。塗り壁をバックに、春には桜、夏には青く生い茂った枝、秋にはススキ、冬にはクリスマスツリーやお正月のお飾りを。玄関ホールがただのホールではなく四季折々の飾りを楽しむギャラリーのような空間になります。
リビングへと続く扉の横にはガラスのスリットを設け、リビングの光を玄関に取り入れます。窓のない玄関に自然光が流れ、ガラスを通して視覚的にも奥の方へと広がり、空間全体の広さを感じることができるようになります。
こちらは同じく海に面した百道浜のマンション、ネクサス百道レジデンシャルタワーのリノベーション施工物件の玄関。リビングに入ってくる海側からの光を、ガラスを通して玄関まで取り込みました。光と景色が広がり、暗く閉鎖的だった玄関が明るくなり、また玄関を入った時の大きなアイキャッチにもなりました。
?暗くて狭い玄関を私達はこうリノベーションします。
http://www.renovation-casa.com/works/entrance
約100㎡もあるこの物件。全体的には広いはずなのに、玄関を開けたら狭い廊下とその正面には壁が立ちはだかり、全くその広さを感じることができなかったのがウィークポイントでした。
玄関の不満点
空間全体の広がりを感じられるような玄関にしたい。どうやったら狭くない玄関になるのか?
玄関収納を腰高の収納にし、視覚的に目線が広がりを持たせる。
床から天井まであった両開きの玄関収納を取り払い、腰高の収納を設けました。そうすることにより玄関扉を開けた際に視覚的に目線が広がり、空間が広く感じるようになります。腰高の玄関収納は小物やオブジェを飾ることもでき、お客様のお出迎えがきちんとできるスペースにもなります。
玄関正面の壁をアイキャッチに
?
玄関入って正面に見える壁を塗り壁調にして、アイキャッチのポイントとします。だだの壁ではなくこうしたアクセントを持たせることで、玄関を入った時の驚きや感動、この先にどんな空間が広がるのかなというワクワク感も生まれます。塗り壁をバックに、春には桜、夏には青く生い茂った枝、秋にはススキ、冬にはクリスマスツリーやお正月のお飾りを。玄関ホールがただのホールではなく四季折々の飾りを楽しむギャラリーのような空間になります。
ガラスを通してリビングの光を取り入れる。視線も広がる。
リビングへと続く扉の横にはガラスのスリットを設け、リビングの光を玄関に取り入れます。窓のない玄関に自然光が流れ、ガラスを通して視覚的にも奥の方へと広がり、空間全体の広さを感じることができるようになります。
こちらは同じく海に面した百道浜のマンション、ネクサス百道レジデンシャルタワーのリノベーション施工物件の玄関。リビングに入ってくる海側からの光を、ガラスを通して玄関まで取り込みました。光と景色が広がり、暗く閉鎖的だった玄関が明るくなり、また玄関を入った時の大きなアイキャッチにもなりました。
?暗くて狭い玄関を私達はこうリノベーションします。
http://www.renovation-casa.com/works/entrance