さて、リノベーションの流れの話でstep1初回ヒアリング→step2現地調査→step3プレゼンテーションと進んでいくお話をさせていただきましたが、ここからが本格的な家づくりのスタートです。
初回プレゼンテーションでプランとイメージ、お見積もりをご提示し、さらにそこから細かいご要望やご予算をヒアリングさせていただいて、場合によっては2度目のプレゼンテーションを行うこともあります。
そこで当社とリノベーションを進めていきたいとご納得いただいたお客様と「設計契約」を締結させていただき、プレゼンテーションでご提案したプランをもとにさらに詳細な設計内容を作成していきます。契約することにより、私たちと施工業者とのやり取りが本格的に開始され、同時にデザインや仕様・価格を煮詰めていく詳細な打ち合わせが始まります。
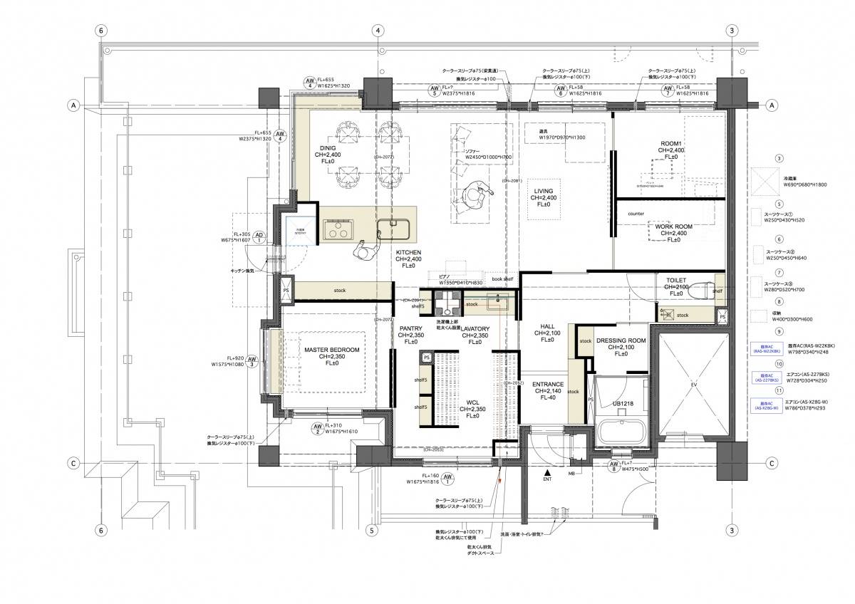
図面は打ち合わせを重ねるごとに細かくなっていきますが、最初はこのような簡易的な図面にて設計契約を締結させていただきます。ここで特徴的なのが、「俯瞰CG」にてプランを立体的に確認していただくことです。平面図ではなかなか立体的に空間を捉えることが難しいですが、
このような俯瞰CGをご提示することで立体的に空間をイメージしていただくことができ、より実際のイメージに近いプランをご確認いただくことが可能です。初期の段階でこのような詳しいCGをご提示することでその後の打ち合わせがスムーズになり、大変分かりやすいと好評いただいております。
また、同時に実際の視点からのCGもご提示します。例えば、
ウォークインクローゼットを抜けたところに洗面室があるこの部分のプラン、なかなか平面だと想像できないかと思いますが、
このようなCGがあると分かりやすいかと思います。
LDKは・・・
このようなイメージになります。この後こちらの白黒のCGに色をつけていきますが、まずはこのようなかたちで空間を立体的にイメージしていただきます。
初期の段階でこのような分かりやすいツールを用いてお話することでより想像を膨らませていただいて、楽しいお打ち合わせを進めていきます。
次回はstep5色付きのCGによる打ち合わせ。この白黒のCGに実際にご提案するフローリングや壁紙、タイルなどの素材で色をつけたもので行うより本格的な打ち合わせをご紹介します。
さて、リノベーションの流れの話でstep1初回ヒアリング→step2現地調査→step3プレゼンテーションと進んでいくお話をさせていただきましたが、ここからが本格的な家づくりのスタートです。
初回プレゼンテーションでプランとイメージ、お見積もりをご提示し、さらにそこから細かいご要望やご予算をヒアリングさせていただいて、場合によっては2度目のプレゼンテーションを行うこともあります。
そこで当社とリノベーションを進めていきたいとご納得いただいたお客様と「設計契約」を締結させていただき、プレゼンテーションでご提案したプランをもとにさらに詳細な設計内容を作成していきます。契約することにより、私たちと施工業者とのやり取りが本格的に開始され、同時にデザインや仕様・価格を煮詰めていく詳細な打ち合わせが始まります。
図面は打ち合わせを重ねるごとに細かくなっていきますが、最初はこのような簡易的な図面にて設計契約を締結させていただきます。ここで特徴的なのが、「俯瞰CG」にてプランを立体的に確認していただくことです。平面図ではなかなか立体的に空間を捉えることが難しいですが、
このような俯瞰CGをご提示することで立体的に空間をイメージしていただくことができ、より実際のイメージに近いプランをご確認いただくことが可能です。初期の段階でこのような詳しいCGをご提示することでその後の打ち合わせがスムーズになり、大変分かりやすいと好評いただいております。
また、同時に実際の視点からのCGもご提示します。例えば、
ウォークインクローゼットを抜けたところに洗面室があるこの部分のプラン、なかなか平面だと想像できないかと思いますが、
このようなCGがあると分かりやすいかと思います。
LDKは・・・
このようなイメージになります。この後こちらの白黒のCGに色をつけていきますが、まずはこのようなかたちで空間を立体的にイメージしていただきます。
初期の段階でこのような分かりやすいツールを用いてお話することでより想像を膨らませていただいて、楽しいお打ち合わせを進めていきます。
次回はstep5色付きのCGによる打ち合わせ。この白黒のCGに実際にご提案するフローリングや壁紙、タイルなどの素材で色をつけたもので行うより本格的な打ち合わせをご紹介します。