私たちがリノベーションにおいて大切にしていることの一つに、間取りの「回遊性」があります。回遊性とは、例えば廊下で突き当ったり、入口が一つしかないために一方向からのアクセスしかできなかったりする間取りとは反対で、多方向からのアクセスが可能でぐるぐると回れる間取りのことです。なぜ私たちは回遊性を大切にしているのか。それにはいくつかの理由があります。
同じ広さの家でも、回遊性のある間取りの方が広く感じます。人間の感覚として、行どまったりそこから戻ったりするよりも多方向にぐるぐる回っていけるほうがその先への広がりを感じることができるからです。
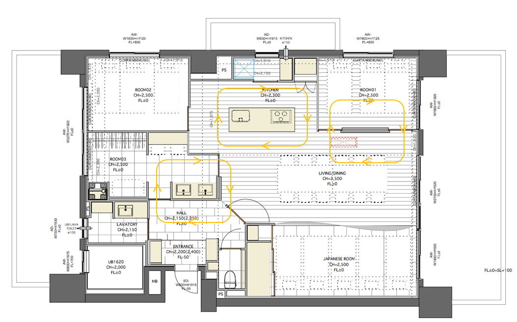
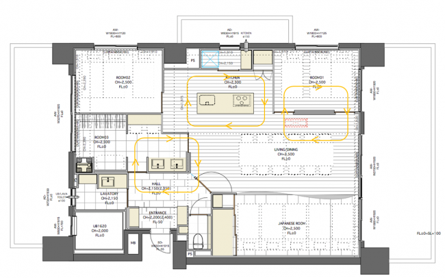
beforeとafterの間取りを比べてみると、beforeの間取りでは居室、キッチン、リビングダイニング、それぞれ1方向からしかアクセスできず行き止まりになってしまうため、空間の広がりが感じられません。しかしリノベーション後のafterの間取りでは、ホール⇔リビングダイニング⇔キッチン⇔パントリー⇔ホールの回遊性のあるアクセスで家全体をぐるぐると回ることができ、それにより閉塞感がありませんので、同じ面積の空間でも広く感じることができます。
住宅の不満点の一つに、家事の導線が良くなく無駄な動きが多いということが多々挙げられます。キッチンと洗面室、パントリーなどが離れたところにあると、家事をしながらそれぞれの空間を行ったり来たりしなければならず、非効率です。この家事の無駄な動きを省き効率よく家事を進めるために、空間ごとに行き来できる回遊性を設けます。料理をしながら洗濯をしたり、洗面室のお掃除をしたり。水廻りの家事導線がいいことで一度に複数の家事をこなすことができ、そのスムーズな流れで無駄な動きがなくなり、家事の効率がぐんとアップします。
キッチンを中心に動き回る主婦にとって、キッチン周辺を回遊できるかどうかで毎日の家事作業の効率が決まり、それにより披露やストレスも違ってきます。
一つの部屋に二か所の出入り口があると部屋同士をつなげることができ、二つの方向に移動することができるため、行きたい方向に向かっての近道になります。この間取りはウォークインクローゼット⇔寝室⇔廊下の回遊性があり、外から帰ってきて直接ウォークインクローゼットにアプローチすることも可能ですし、そこを通れば寝室への近道にもなります。住宅内の移動がスムーズにできることは、暮らしやすい間取りの条件の一つです。
家族が一か所に集中する場合や誰かが掃除などの作業で通路を塞いでいる場合、回り道がなくすれ違いができないために住宅内での渋滞がおこってしまいます。しかし回遊性がある間取りだといずれかに逃げ道ができ、導線交錯が緩和され渋滞を避けることができます。
Iプロジェクトの回遊性を見てみましょう。
こちらのIプロジェクトでは、玄関ホール⇔メイクルーム⇔LDK、寝室⇔LDKの間で回遊性を設けています。大勢で集まったときにも多方向からのアクセスにより渋滞が緩和され、空間もより広く感じることができます。また、キッチンもアイランドキッチンで回遊性があり、大人数でも混み合わずにキッチンを使うことができますのでとても便利です。
間取りを考える際に「回遊性」というキーワードを是非覚えておいてください。
私たちがリノベーションにおいて大切にしていることの一つに、間取りの「回遊性」があります。回遊性とは、例えば廊下で突き当ったり、入口が一つしかないために一方向からのアクセスしかできなかったりする間取りとは反対で、多方向からのアクセスが可能でぐるぐると回れる間取りのことです。なぜ私たちは回遊性を大切にしているのか。それにはいくつかの理由があります。
行き当らない間取りで空間を広く感じさせるため
同じ広さの家でも、回遊性のある間取りの方が広く感じます。人間の感覚として、行どまったりそこから戻ったりするよりも多方向にぐるぐる回っていけるほうがその先への広がりを感じることができるからです。
before
after
beforeとafterの間取りを比べてみると、beforeの間取りでは居室、キッチン、リビングダイニング、それぞれ1方向からしかアクセスできず行き止まりになってしまうため、空間の広がりが感じられません。しかしリノベーション後のafterの間取りでは、ホール⇔リビングダイニング⇔キッチン⇔パントリー⇔ホールの回遊性のあるアクセスで家全体をぐるぐると回ることができ、それにより閉塞感がありませんので、同じ面積の空間でも広く感じることができます。
動線を良くし、家事の流れをスムーズにするため
住宅の不満点の一つに、家事の導線が良くなく無駄な動きが多いということが多々挙げられます。キッチンと洗面室、パントリーなどが離れたところにあると、家事をしながらそれぞれの空間を行ったり来たりしなければならず、非効率です。この家事の無駄な動きを省き効率よく家事を進めるために、空間ごとに行き来できる回遊性を設けます。料理をしながら洗濯をしたり、洗面室のお掃除をしたり。水廻りの家事導線がいいことで一度に複数の家事をこなすことができ、そのスムーズな流れで無駄な動きがなくなり、家事の効率がぐんとアップします。
after
キッチンを中心に動き回る主婦にとって、キッチン周辺を回遊できるかどうかで毎日の家事作業の効率が決まり、それにより披露やストレスも違ってきます。
近道を作って住宅内の移動をスムーズにするため
after
一つの部屋に二か所の出入り口があると部屋同士をつなげることができ、二つの方向に移動することができるため、行きたい方向に向かっての近道になります。この間取りはウォークインクローゼット⇔寝室⇔廊下の回遊性があり、外から帰ってきて直接ウォークインクローゼットにアプローチすることも可能ですし、そこを通れば寝室への近道にもなります。住宅内の移動がスムーズにできることは、暮らしやすい間取りの条件の一つです。
逃げ道、回り道を作って導線交錯を緩和し渋滞を避けるため
after
家族が一か所に集中する場合や誰かが掃除などの作業で通路を塞いでいる場合、回り道がなくすれ違いができないために住宅内での渋滞がおこってしまいます。しかし回遊性がある間取りだといずれかに逃げ道ができ、導線交錯が緩和され渋滞を避けることができます。
Iプロジェクトの回遊性を見てみましょう。
after
こちらのIプロジェクトでは、玄関ホール⇔メイクルーム⇔LDK、寝室⇔LDKの間で回遊性を設けています。大勢で集まったときにも多方向からのアクセスにより渋滞が緩和され、空間もより広く感じることができます。また、キッチンもアイランドキッチンで回遊性があり、大人数でも混み合わずにキッチンを使うことができますのでとても便利です。
間取りを考える際に「回遊性」というキーワードを是非覚えておいてください。