• ラインナップ
  • 分譲住宅
  • 注文住宅
  • イベント
  • お問い合わせ
  • ラインナップ HAUS piatto HAUS cube HAUS cubeF HAUS garage
  • 分譲住宅 7つのこだわり 福岡で平屋暮らし
  • 注文住宅 モデルハウス 施工例 部屋別施工例 お客様の声
  • イベント お知らせ ブログ ルームツアー
  • お問い合わせ 無料相談会 資料請求 リフォーム相談 メンテナンス相談

その他
  • 企業情報
  • 採用情報
  • 三和エステート
  • サイトポリシー
  • Facebookページへリンク
  • Instagramページへリンク
  • Pinterestページへリンク

住まいの快適さを追求する「動線から考える」 ?生活時間編

掲載日:2015年03月19日 カテゴリー:戸建住宅

今回は動線を考える上で最も重要ではありますが、

意外に忘れられている生活時間を考慮しながら、

動線を考慮していきたいと思います。

【casa basso(伊都安蔵里内モデル)】

家事動線はいかに短くするかということで、

1カ所に水回りを集めて計画しますが、

リアルな生活実態を考慮すると必ずしも1ヶ所に集めないほうがいいケースもあります。

例えば、DINKS(ディンクス)のような共働きの世帯では、

寝る前や起きて直ぐ家事を取り掛かることが多く、

場合によっては寝室の近くに浴室・洗面・家事室を設けた場合の方が、

家事動線が短くなる場合もあります。

その他、生活感をLDKなどに出さないといったメリットもあります。

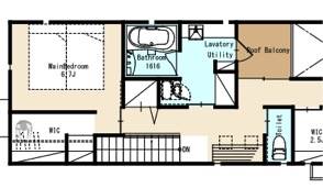
【2F-PLAN:水回りを敢えて寝室付近に設け、寝る前、起きて直ぐに洗濯などの家事をする。】

【1F-PLAN:浴室周りを2Fに上げたことで、LDKを広く生活感を出さないようにしています。】

重要なのは1日のうちに『どこでどのくらい過ごすか』。

それが空間と生活時間とがリンクしていないと、

動線は長く不便なものになります。

当社では『どこでどのくらい過ごすか』をヒアリングしながら、

1週間のなかのオン・オフと1日の中の生活時間を踏まえながら、

空間提案をしています。

< prev  |   一覧へ   |  next >

家づくりのことなら
どんなことでもご相談ください
専属スタッフがあなたの家づくりを隅々まで
サポートいたします

  •  
  •  
  •  

家づくりのことなら
どんなことでもご相談ください


  • 無料相談
  • 見学申込
  • お問合せ
  • 資料請求

  • ラインナップ
  • 分譲住宅
  • 注文住宅
  • モデルハウス
  • イベント
  • お客様の声
  • 7つのこだわり
  • 資料請求
  • 無料相談会
  • ブログ
  • Youtube
  • Instagram